TF RESIDENCE | Ghosta, Lebanon
Architectural and Interior Design

Type: Residential

Status: Built

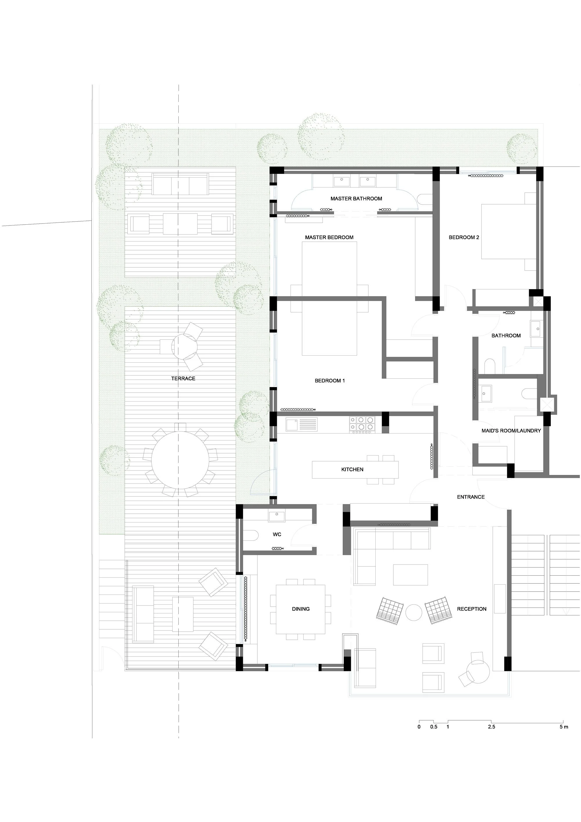
This project began with a family that had outgrown their home without wanting to leave it. The answer was not to relocate but to expand, carefully and with intention.

The extension adds a generous living area to the existing apartment, opening up the space without breaking its continuity. The design moves seamlessly between old and new, the transition between what was there and what was added felt rather than seen. There are no visible seams, no moments where the intervention announces itself.

Natural materials tie the two together. Wood and stone run across both the existing and extended spaces, while custom joinery gives the enlarged living area its structure and character. Bold colours appear with confidence, anchoring specific moments and giving the family's home a personality that feels entirely their own. Soft furnishings layer in warmth and comfort, completing a space that is both considered and lived in.

The result is an apartment that feels as though it was always this size. Generous, coherent, and built for the long term.

Previous
Previous

K RESIDENCE

Next
Next

BURJ EL MURR