K RESIDENCE | Mechmech, Lebanon
Architectural Design

Type: Residential

Status: Aborted

Mechmech sits in the mountains of Lebanon, where stone has been the primary building material for centuries. This family house takes that vernacular seriously, not as nostalgia, but as a foundation.

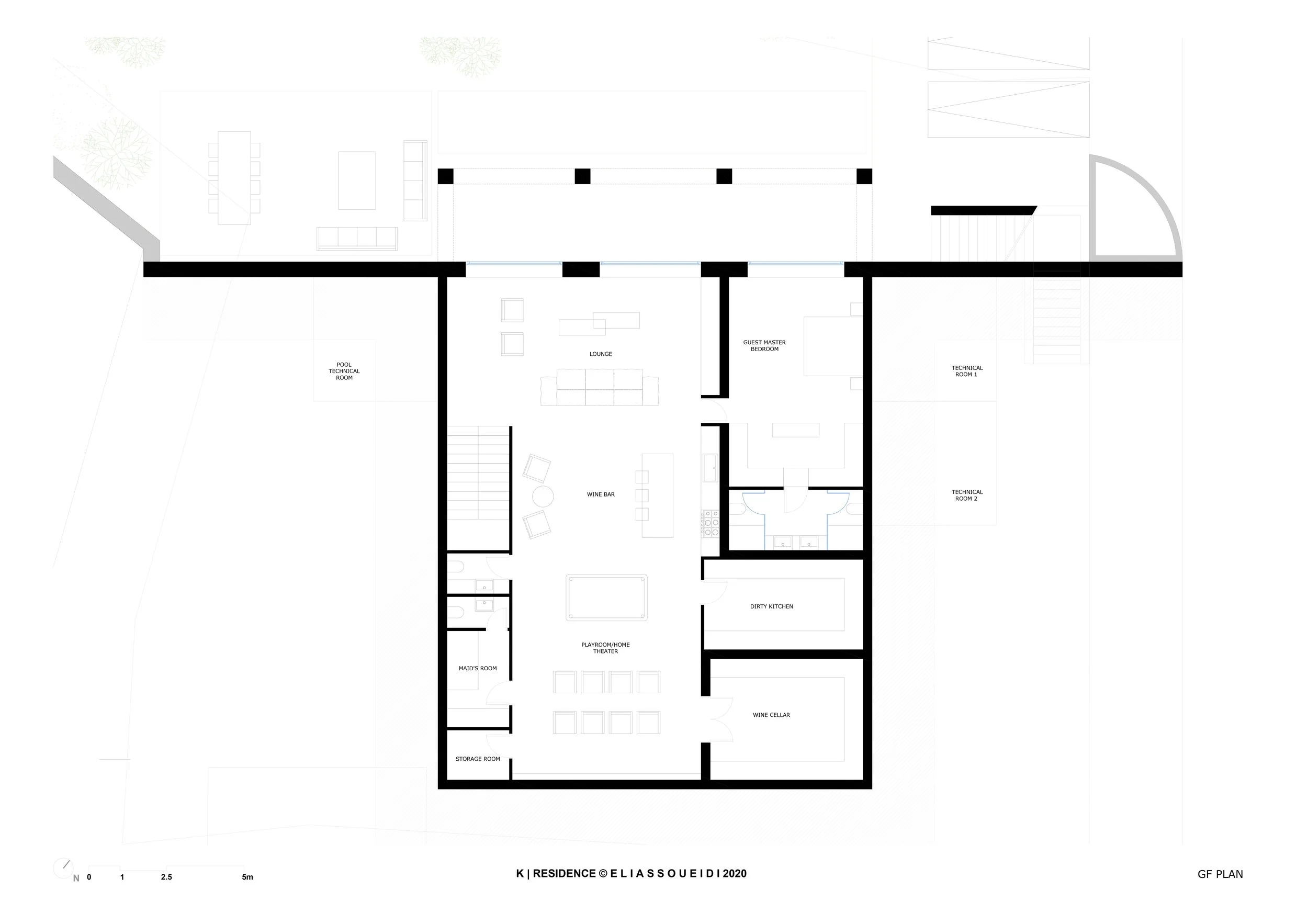
The ground floor is built in traditional stone construction, solid and rooted, a direct continuation of the architectural language that has defined these mountains for generations. Above it, the first floor operates as a different proposition entirely. Modern in its materiality and its logic, it sits on top of the stone base as a distinct entity, connected to gardens, a pool, and generous outdoor spaces that extend the living area into the landscape.

The contrast between the two floors is deliberate. It does not try to reconcile the old and the new into something smooth or seamless. Instead it allows both to exist on their own terms, each legible, each honest about what it is.

What ties the project together is its flexibility. The house was designed to adapt to how it is used and by whom. Rooms can be opened or closed, occupied independently or as a whole, making it equally suited to a quiet weekend for two or a full family gathering in the summer heat. The architecture does not dictate how the family lives. It makes room for all the ways they might.

Previous
Previous

AW RESIDENCE

Next
Next

TF RESIDENCE