SM RESIDENCE | Dbayeh, Lebanon
Interior Design

Type: Residential

Status: Built

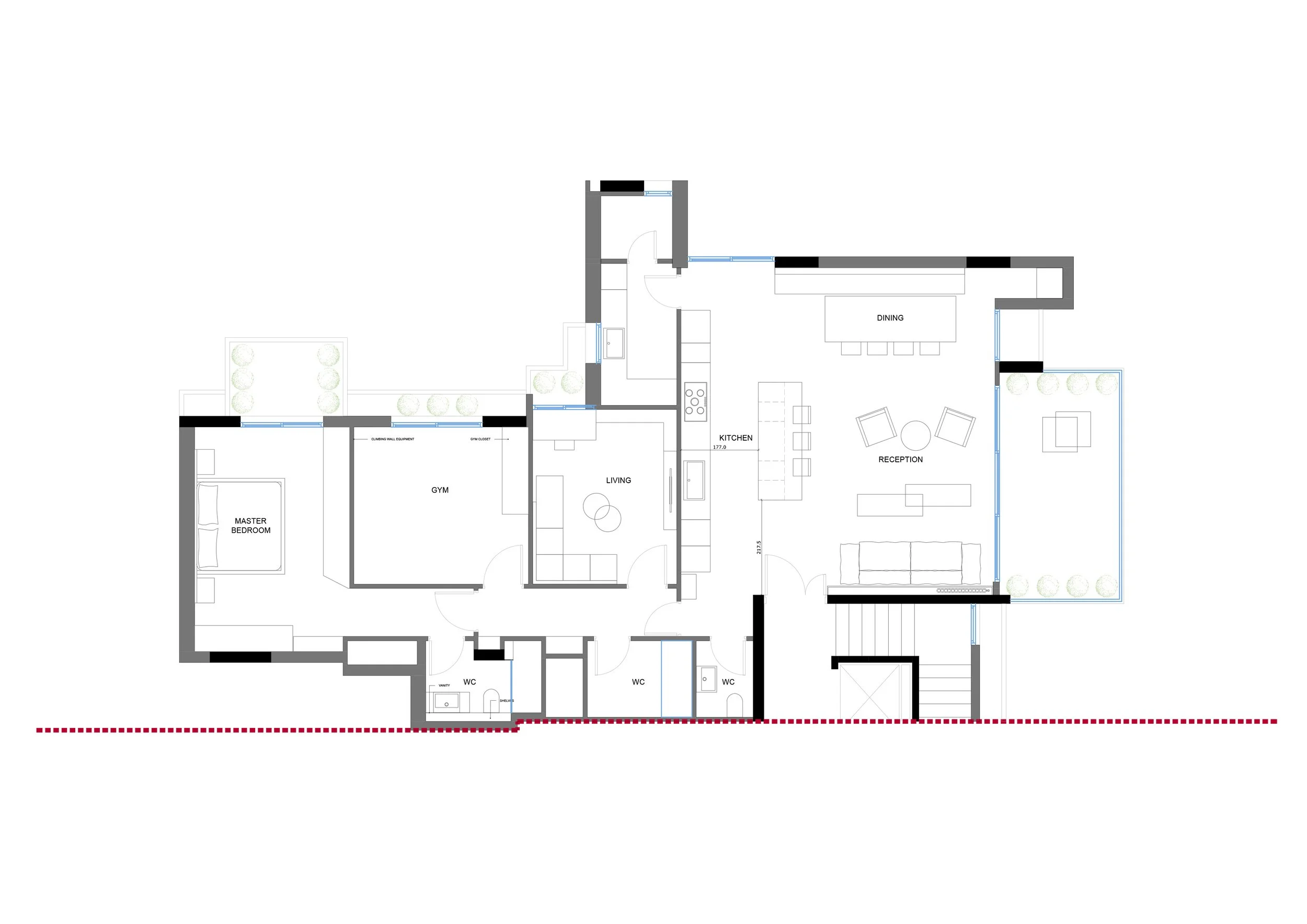
This apartment in Dbayeh was designed for a couple seeking a home that feels warm without being heavy, open without being cold. The brief was as much about atmosphere as it was about layout.

The design is organised around a bright, open kitchen that anchors the living spaces and invites a natural flow between cooking, dining, and gathering. Warm tones run throughout, softened by natural materials: wood, stone, and textiles that give each room a sense of weight and comfort without closing it in.

Custom joinery defines the quieter moments of the apartment. Storage, shelving, and built-in elements were designed with the same care as the more visible surfaces, ensuring that the home functions as well as it feels.

The result is a space that is considered but not rigid, personal but not decorative. A home that belongs to the people who live in it.

Previous
Previous

IN SILICO DESIGN

Next
Next

AH RESIDENCE